Eigentumswohnungen in der Eduard-Rosenthal-Straße in Weimar
Startseite
Kontakt
Attraktives Wohnen in Weimar
.
appelt & kleemeyer GbR
Gesellschaft für innovatives Bauen
.
Wohnung 1 Gartengeschoss
Wohnung 1 Erdgeschoss
Ausblick
Lage
Wir über uns
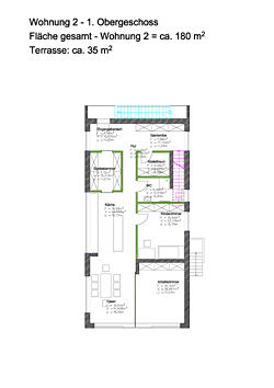
Wohnung 2 1.Obergeschoss
Wohnung 2 2.Obergeschoss
Referenzen
Partner
Impressum